
Serie profili IDEAL 4000 łączą w sobie najnowocześniejszą technikę z najwyższym komfortem mieszkania..
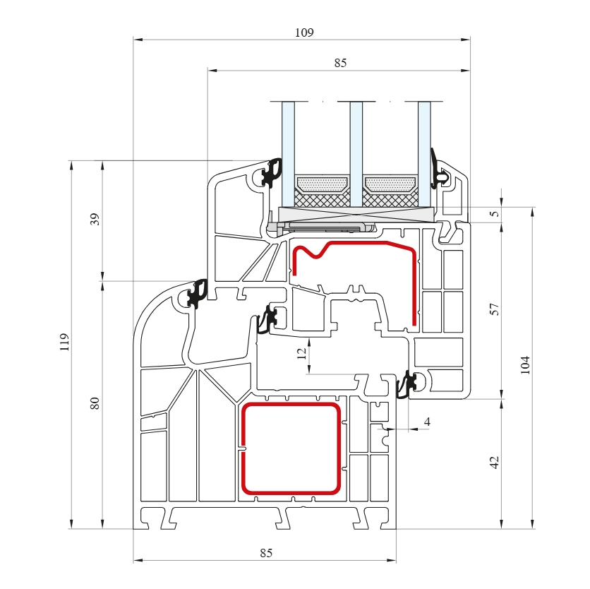
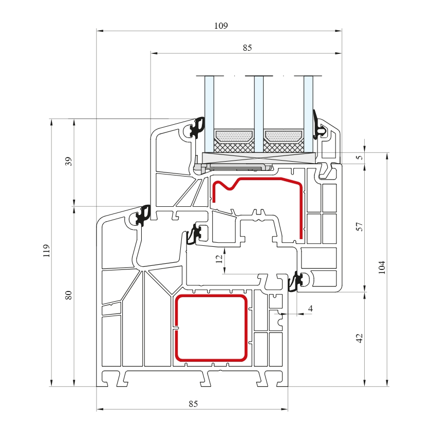
Jeden z naszych najbardziej uniwersalnych systemów. Znajduje zastosowanie w architekturze nowoczesnej budownictwa jednorodzinnego, wielorodzinnego, jak i w przypadku renowacji. Ekonomia połączona ze standardowym rozwiązaniem – to właśnie definicja systemu Ideal 4000.
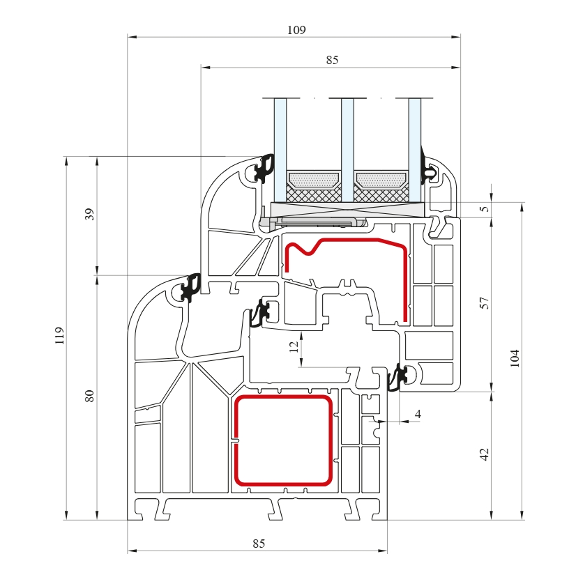
Sześciokomorowa rama, zamknięta w udoskonalonej wersji najpopularniejszego systemu okiennego. Ideal 4000 New to wysoki standard uzupełniony o dobre parametry cieplne.
* Powyższa wartość Uw podana jest dla okna referencyjnego o wymiarach 1230 x 1480 mm.
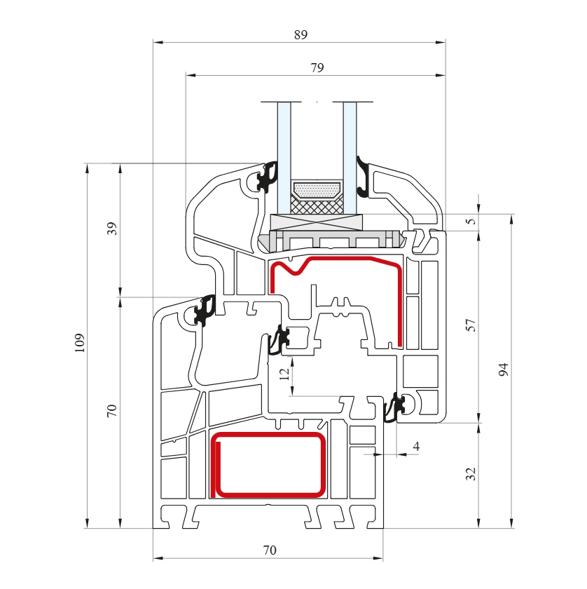
Okna łączące ze sobą nowoczesny design z bardzo dobrymi parametrami technicznymi. System Ideal 5000 posiada potrójne uszczelnienia. Dostępny także w wersji z niższą ramą, dzięki której w łatwy sposób można doświetlić każde pomieszczenie.
* Powyższa wartość Uw podana jest dla okna referencyjnego o wymiarach 1230 x 1480 mm
Energooszczędne okna wykonane przy użyciu najnowocześniejszych technologii. Ideal 7000 NEW to odpowiedź na rosnące wymagania w zakresie izolacyjności termicznej stolarki okiennej.
* Powyższa wartość Uw podana jest dla okna referencyjnego o wymiarach 1230 x 1480 mm
Najnowsza generacja. Okna wykonane w oparciu o system Ideal 8000 zapewniają termoizolację oraz izolację akustyczną na najwyższym poziomie. System dostępny w wersji Energeto 8000 Powerdur, przeznaczony jest dla budownictwa energooszczędnego i pasywnego.
* Powyższa wartość Uw podana jest dla okna referencyjnego o wymiarach 1230 x 1480 mm.
Ideal Neo to wyjątkowy design, proste struktury, mocne kąty i wąskie przylgi okienne. Idealnie sprawdzą się w obiektach nowobudowanych i poddanych renowacji. Ideal Neo to system oparty o innowacyjne technologie. Jedną z dodatkowych opcji jest technologia „bonding inside”, która umożliwia osiągnięcie wyjątkowych parametrów statycznych i cieplnych. Stałe sklejenie szyby i skrzydła zmniejsza ryzyko wygięcia i wykrzywienia skrzydła. Technologia ta zapewnia komfort użytkowania okien przez długie lata.
* Powyższa wartość Uw podana jest dla okna referencyjnego o wymiarach 1230 x 1480 mm
Od pomiaru do montażu z wsparciem na każdym etapie realizacji usługi




